Nachbarschaft
Veröffentlicht am 04.12.2023 von André Görke
„Wir sind schon 60 Mitglieder“, erzählt mir jetzt Surya Weimer und meint damit den neuen Verein „Havelschatz“, der sich am Breitehorn gegründet hat. Die Laubenpieper sind in Sorge um ihr Paradies am Fluss.
Das zwei Kilometer lange Gelände zwischen der Badestelle Breitehorn und dem Gutspark Neukladow soll entrümpelt werden. Das Land hat das Gelände vor zwei Jahren von der Bundesbehörde Bima aus Bonn übernommen – ich hatte berichtet. Im Sommer wurde eine „Machbarkeitsstudie“ beauftragt, was damit passieren kann oder sollte. Umweltstadtrat Thorsten Schatz, CDU, sagte neulich auf Nachfrage von Lukas Schulz, SPD, im Rathaus: „Mitte 2024 erwarten wir Ergebnisse.“ Es geht um die Renaturierung von Teilflächen, um Überschwemmungsgebiete, Grundwasserschutz, Reduzierung wilder Autoparkplätze ff.
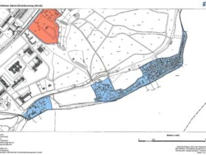
Hier ein Blick in die Senatspapiere. Die blauen Flächen wurden vom Land Berlin für 3,5 Mio. gekauft.

Neben den drei Vereinen Havelfreude, Havelwiese und Breitehorn gibt’s nun auch den Verein „Havelschatz“. Der vertritt die Interessen der Pächter nahe dem britischen Yachtclub. Hier die neue Homepage havelschatz.org.
80 Parzellen gehören zu dieser Ecke. Viele sind in Sorge: Klar, da steckt Zeit und Liebe drin, Gartenpflege und Geld. Keiner will aus seinem persönlichen Paradies vertrieben werden: „Es ist eine Wochenendsiedlung mit einem bunten Querschnitt: Familien, Rentner, Kinder, Einkommensschwache, manche kommen auch aus dem Ausland wie Österreich, Iran, Israel …“, erzählt mir Weimer, als ich sie nach den Mitgliedern frage. „Andere sind schon seit über 50 Jahren hier und haben schon als Kind hier gespielt.“ Sie selbst lebt im Ortsteil Schmargendorf und gehört seit 2022 zur Kladower Siedlung.
Am Wochenende war der Bundestagsabgeordnete und Ex-Bürgermeister Helmut Kleebank, SPD, vor Ort. „Ich will mir einen Eindruck von der Situation vor Ort machen“, sagte er mir. „Das Grundstück ist ja vom Bund an das Land verkauft worden und wird jetzt vom Bezirk verwaltet.“
„Wir waren in heller Aufruhr, als wir vom Verkauf in der Presse erfahren haben“, sagt mir Weimer. Seitdem gibt es viele Fragezeichen, was da am Uferstreifen geplant wird. Zum gesamten Gelände gehört ja nicht nur das Laubenpieperidyll, sondern auch eine DRK-Rettungsstation, Angel- und Segelvereine, eine fantastische Badestelle am Uferweg sowie ein leerstehendes Restaurant.

Das beliebte Lokal „Salt&Sugar“ (früher „Seeblick“) hatte im Frühsommer 2023 die Reißleine gezogen und war lieber rechtzeitig an den Kladower Campingplatz gewechselt.
Mehr Infos, bitte! Die Kommunikation von Umweltstadtrat Thorsten Schatz, CDU, sei dürftig, klagt Weimer. „Wir haben das Rathaus angeschrieben, um Gespräche gebeten, aber bisher vergeblich …“ Stimmt so nicht, entgegnet wiederum der Stadtrat. Am 9. November habe er persönlich der Initiative geschrieben. Allerdings: „Die Initiative ist keine Pächterin des Bezirksamtes, sondern nach eigenen Aussagen Unterpächter einer Einzelpächterin des Bezirksamtes. Mit der Pächterin des Campingplatzes wird derzeit ein Termin vereinbart, um über das Pachtverhältnis zu sprechen. Da ich es für zwingend halte, zuerst dieses Gespräch und das Ergebnis abzuwarten, habe ich ein Gespräch mit der Initiative abgelehnt.“ Mit den Vorständen der drei anderen Vereine stehe er hingegen bereits länger in Kontakt. 2022 hatte ich „mein Vorgehen und die Handlungsspielräume des Bezirks dargestellt“.
Was heißt Renaturierung? Abriss? Da möchte die Initiative „Havelschatz“ logischerweise ein Wörtchen mitreden, denn die Kleingärtner haben eigene Ideen, wie sie der Natur helfen und ihr Paradies retten können. „Wir könnten beispielsweise fremde Pflanzen durch heimische Arten ersetzen und ansiedeln“, so Weimer. Heißt: Bambus raus, lieber Sträucher rein – die sind besser fürs Erdreich und bieten Vögeln Nahrung und Verstecke. Oder sie könnten Totholzhecken statt Zäune errichten, in denen sich Insekten verstecken können. Man könnte Wege so gestalten, dass wilde Tiere sie als Schneise nutzen können – „Waschbären, Dachse, Füchse, all das haben wir mit Wildtierkameras schon entdeckt“. Und Erdkröten würden ebenfalls dort leben. Quak.
„In den Gärten gibt es nicht nur Pflanzen und Tiere, sondern auch Kunstwerke zu entdecken“, berichtet Vize-Chef Christian Kruse. Auch beteilige sich der Verein sozial, etwa beim Klimafest in Kladow – hier ein Foto.

„Mein Ziel ist es, so wenig Eingriffe wie möglich und nur so viele Eingriffe wie nötig vorzunehmen“, hat Stadtrat Schatz noch in seinem Brief an die Initiative „Havelschatz“ geschrieben. Der Kaufvertrag zwischen dem Land Berlin und der Bonner Behörde Bima zwinge den Bezirk, Maßnahmen zur Renaturierung auf dem erworbenen Gesamtareal umzusetzen. Und als Grundlage diene die neue Machbarkeitsstudie mit Handlungsempfehlungen. „Für den Bereich des Campingplatzes sieht der Kaufvertrag jedoch unabhängig von dieser Machbarkeitsstudie die Klausel vor, dass die Nutzung fristgebunden aufzulösen und das Gelände zu renaturieren ist.“ Könnte noch frostig werden am Breitehorn.